Villa Tropicale 17.9m



Villa Tropicale Moderne avec Vue Mer à Bophut – Opportunité d’Investissement Exceptionnelle

 

ID de propriété : B306
Emplacement : Bophut, Koh Samui
Prix demandé : 17 900 000 THB


Présentation :

 

Découvrez cette villa tropicale neuve nichée sur un terrain spacieux de 800 m², offrant une vue mer panoramique garantie, une intimité totale, et une construction haut de gamme réalisée par un entrepreneur local réputé. Située à Bophut, l’un des secteurs les plus recherchés de Koh Samui, cette propriété allie élégance contemporaine, confort et potentiel locatif élevé.


Caractéristiques Principales :

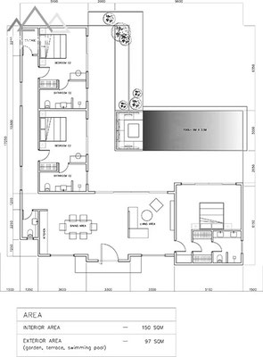
  • Surface construite : 247 m²

  • Terrain : 800 m²

  • 3 chambres, toutes avec accès direct à la piscine et à la terrasse

  • Vue mer depuis tous les espaces de vie et la suite parentale

  • Piscine à débordement entourée d’un aménagement paysager tropical

  • Séjour spacieux et lumineux, avec grandes baies vitrées coulissantes

  • Cuisine moderne entièrement équipée

  • 97 m² d’espace de vie extérieur, avec pergola et coins détente

  • Intimité totaleaucun vis-à-vis

  • Construction de qualité supérieure par un constructeur local reconnu


Avantages de l’Emplacement :

  • Quartier très prisé de Bophut, à proximité immédiate du Village des Pêcheurs, des plages, cafés et restaurants gastronomiques

  • Terrain surélevé offrant un excellent flux d’air naturel et une vue dégagée

  • Emplacement idéal pour une résidence principale ou un investissement locatif à haut rendement


📞 Contactez-nous sur WhatsApp de préférence : +66 82 285 2919 (Antoine)